Lakehouse

Completed

Architectural refresh, renovation and extension in Upstate New York.

View of the existing home, looking East

Render of the extended home, looking East

Lakehouse, Location plan

View of Entry, Render

View from Pool, Render

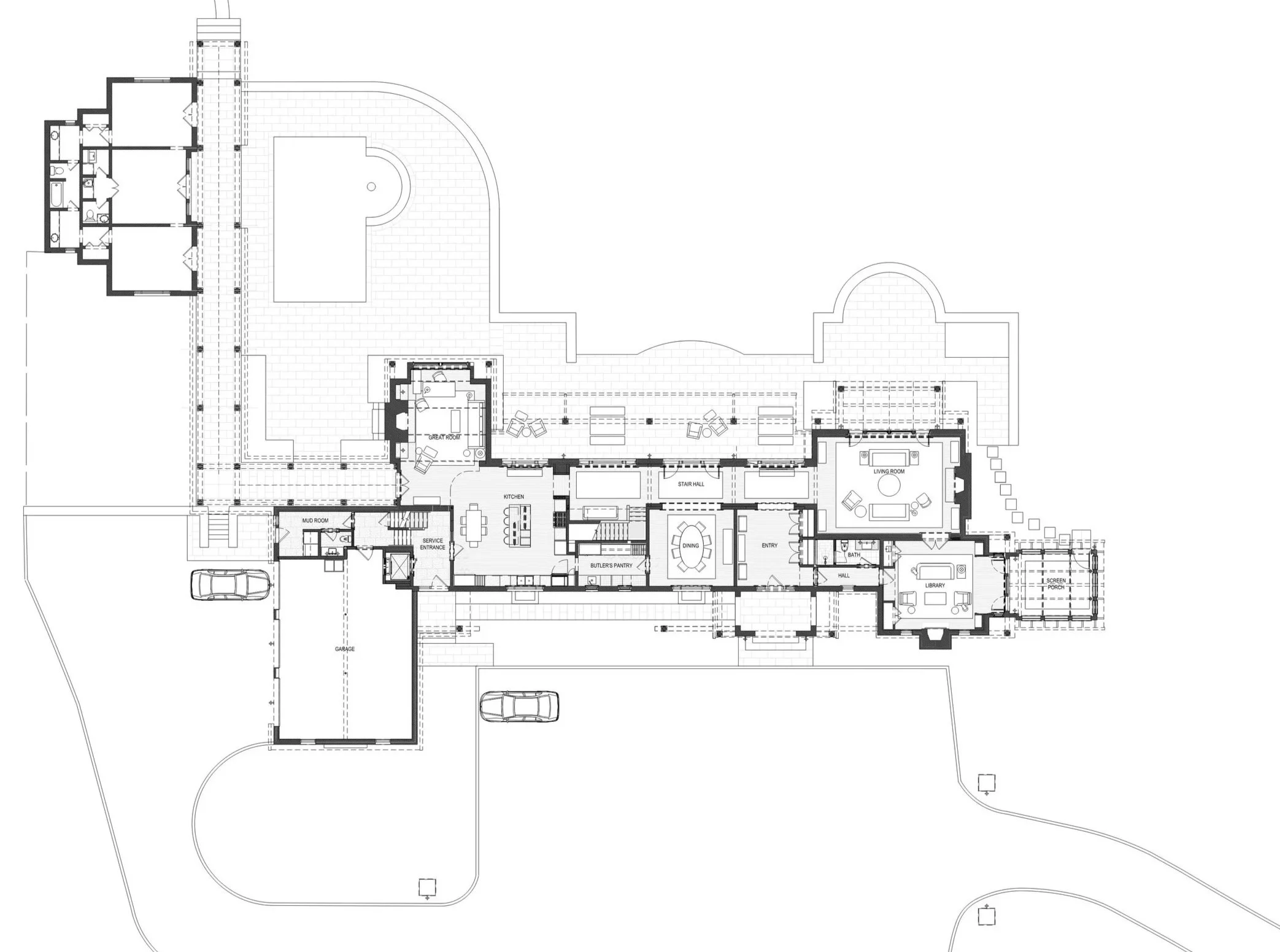
First Floor Plan

Interior view of bathroom, Render

Interior view of bathroom, Render